Доставка и монтаж по всей Российской Федерации
пн-пт 9:00-19:00
сб-вс 10:00-15:00

Топас 5 лонг

р.
р.
Модель: 5 long

Производительность: 1000 л/сут

Залповый сброс: 220 л

Глубина подводящей трубы: до 145 см

Способ отведения воды: Самотечный

Количество пользователей: 5

ДxШxВ: 1180x1100x3100 мм

Сколько стоит монтаж Топас 5

ДОСТАВКА

ШЕФ-МОТАЖ

МОНТАЖ

До 100 КМ от МКАД
4000 ₽
Пуско-наладка
10000 ₽
Стандартный монтаж
от 26000 ₽

Комплектация Топас 5 лонг

Септик Топас 5 лонг поставляется полностью укомплектованным и готовым к эксплуатации. Установка изготавливается и поставляется в едином корпусе.

Стандартная комплектация состоит из таких элементов:

  • Электрическое оборудование (Компрессор -SECOH)
  • Технологическое оборудование
  • Технический паспорт
  • Сертификат соответствия
Насосное оборудование для принудительного водоотведения приобретается отдельно.

комплектация ал2

Особенности Топас 5 лонг

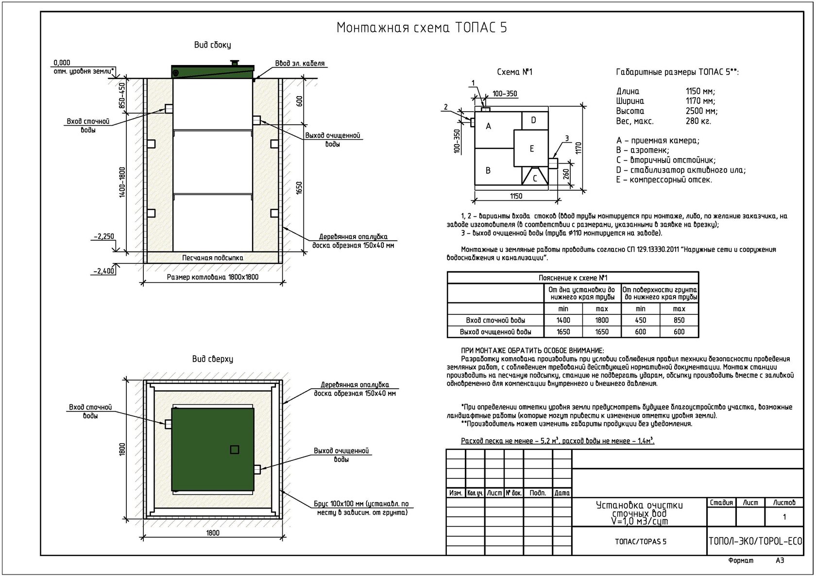
Септик Топас 5 лонг представляет собой прямоугольное устройство в цельном корпусе, предназначенное для очистки воды в загородных домах, где отсутствует центральная канализация. «5» в названии септика означает, что данная модификация рассчитана на обслуживание семьи из 4 человек и переработать до 1.0 м3 за сутки, при этом объем единовременного сброса не должен превышать 220л. (Вся сантехника из дома сливается одновременно) за два часа!

Данная модель септика самотечная, дополнительный дренажный насос и емкость чистой воды не требуется!

Высота септика Топас 5 составляет 2500 см. Станция может устанавливаться в случаях, когда канализационную трубу нужно подводить на расстоянии до 85 см от поверхности.

Монтажная схем Топас 5 для Шеф-монтажа

монтажная схема аквалос 2 самотечная

Особенности Топас 5 лонг

ТОПАС 5 (С САМОТЕЧНЫМ ОТВОДОМ)

В наличии с завода. Выгодное предложение: доп. скидка -10% Преимуществом данного оборудования является углублённый диапазон врезки канализационного трубопровода от 1,05 м до 1,45 м от низа трубы до поверхности земли. Выпуск очищенной сточной воды из станции «Топас 5 Лонг» сделан на глубине 1,05 м от поверхности земли. Очищенная вода отводится самотеком в накопительный или дренажный колодец, в ливневую канаву, если она значительно ниже по рельефу участка.

ТОПАС 5 ПР (С ПРИНУДИТЕЛЬНЫМ ОТВОДОМ)

В наличии с завода. Выгодное предложение: доп. скидка -10% Универсальная станция монтируется в любых типах грунта и при любом уровне грунтовых вод. Принудительный отвод происходит с помощью, установленного в станции дренажного насоса. Это позволяет отводить очищенную сточную воду в канаву, расположенную выше по рельефу или использовать на полив газонов, кустарников и деревьев. При выборе места расположения Топас рекомендуем рассчитать длину отводящего трубопровода, не более 6-7 метров до точки сброса, во избежание промерзания зимой. В случае если глубина заложения канализационного трубопровода в месте установки «Топас 5 Лонг» больше 1,45 м и нет возможности переложить трубу, то возможно нарастить станцию на 0,2 м в заводских условиях или на участке Заказчика, что позволит осуществить врезку канализационной трубы до 1,65 м от поверхности грунта.